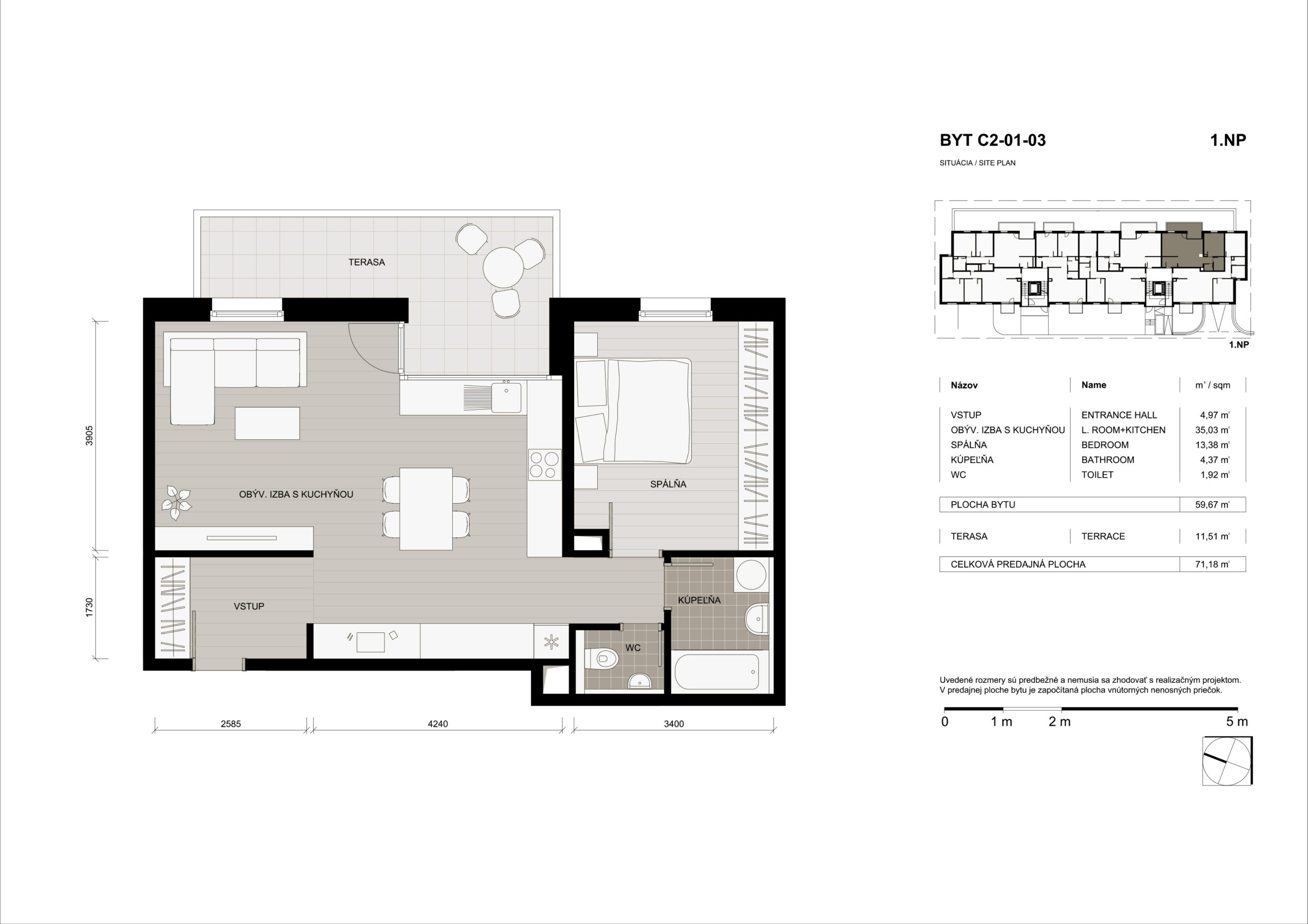
BYT C2-01-03

IZBY

POČET IZIEB V BYTE

2

POLOHA

CENA s DPH

CENA s DPH / STAV

Predaný

s DPH

PREDANÉ

Výmera SPOLU
Hodnota
Plocha bytu
59,67 m2
EXTERIÉR
Terasa
11,51 m2
SPOLU (BYT + Exteriér)
71,18 m2

Výmera priestorov

VSTUP: 4,97 m2
OBÝV. IZBA S KUCHYNOU: 35,03 m2
SPALNA 01: 13,38 m2
KÚPEĽNA: 4,37 m2
WC: 1,92 m2

BYT C2-01-03 na 1NP v Domino Parku je ideálnym miestom pre tých, ktorí hľadajú moderné a komfortné bývanie v blízkosti centra mesta. Byt má celkovú rozlohu 71,18 m2 a disponuje 1 spálňou, obývacou izbou s kuchynským kútom, terasou , kúpeľňou a wc. Bytový dom je vybavený modernými technológiami a ponúka širokú škálu služieb pre rezidentov.

Ste na 1 podlaží

BYTOVÝ DOM
Voľné byty
Rezervované byty
Predané byty


Všetky voľné
0
Všetky rezerv.
0
Všetky predané
0

Vyberáte byt na 1 nadzemnom podlaží

Získajte výhodné uvádzacie ceny !!!

Odoslaním formuláru súhlasíte s pravidlami GDPR.

Návrat hore
domino-park-bytovka-cam01-celkovy_000538-z

SPUSTENÝ PREDAJ a VÝSTAVBA

BYTOV a DOMOV

AKTUALITY

Získajte výhodné uvádzacie ceny !!!
Aktuálne pripravujeme do predaja bytový dom s 25 bytmi

Mám záujem

Zanechajte nám svoj odkaz, obratom sa Vám ozveme