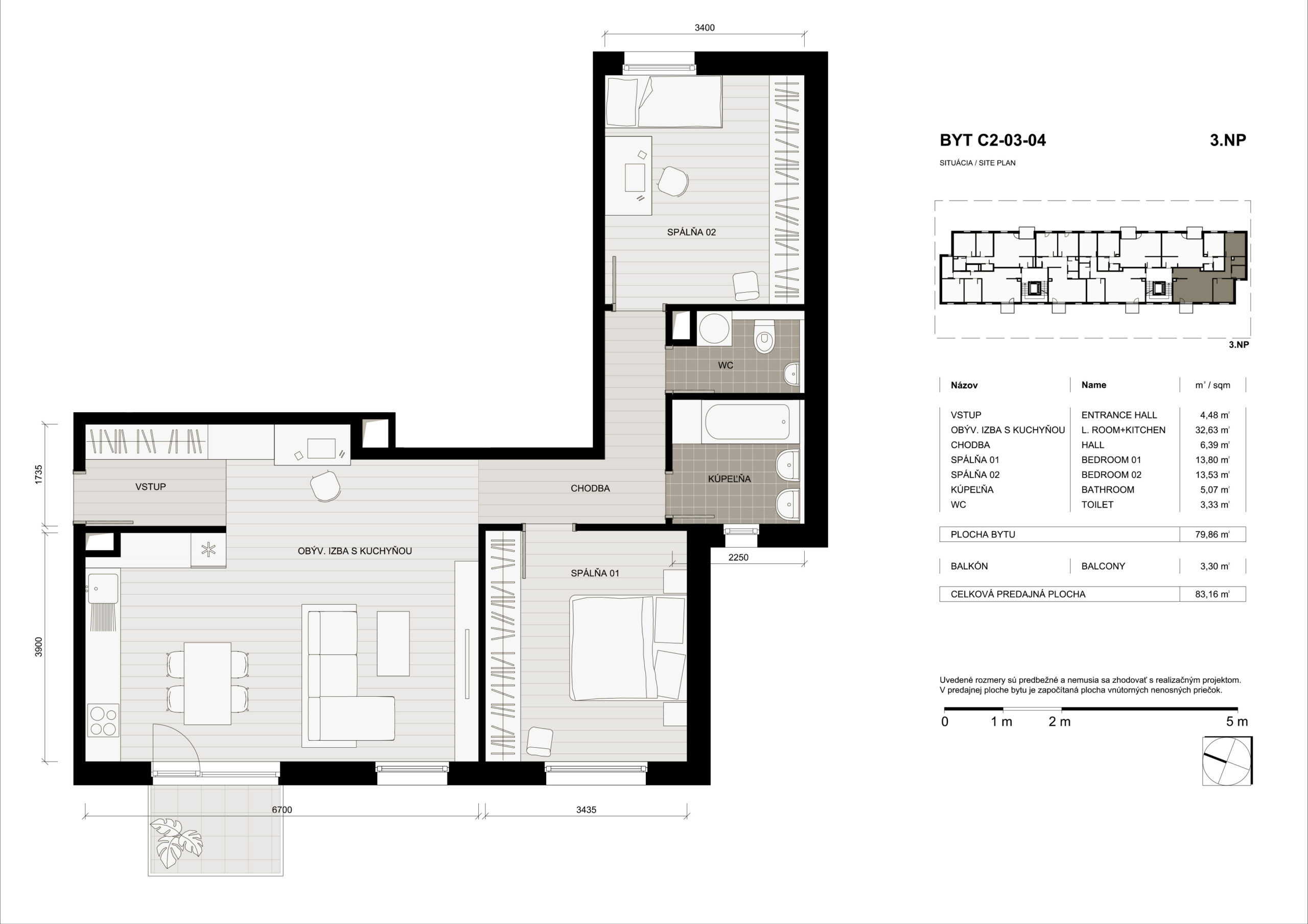
BYT C2-03-04

IZBY

POČET IZIEB V BYTE

3

POLOHA

CENA s DPH

CENA s DPH / STAV

Voľný

s DPH

308 700,00

Výmera SPOLU
Hodnota
Plocha bytu
79,86 m2
EXTERIÉR
Balkón
3,30 m2
SPOLU (BYT + Exteriér)
83,16 m2

Výmera priestorov

VSTUP: 4,48 m2
OBÝV. IZBA S KUCHYNOU: 32,63 m2
CHODBA: 6,39 m2
SPALNA 01: 13,80 m2
SPALNA 02: 13,53 m2
KÚPEĽNA: 5,07 m2
WC: 3,33 m2

BYT C2-03-04 na 3NP v Domino Parku je ideálnym miestom pre tých, ktorí hľadajú moderné a komfortné bývanie v blízkosti centra mesta. Byt má celkovú rozlohu 83,16 m2 a disponuje 2 spálňami, obývacou izbou s kuchynským kútom, balkónom, kúpeľňou a wc. Bytový dom je vybavený modernými technológiami a ponúka širokú škálu služieb pre rezidentov.

Ste na 3 podlaží

BYTOVÝ DOM
Voľné byty
Rezervované byty
Predané byty


Všetky voľné
0
Všetky rezerv.
0
Všetky predané
0

Vyberáte byt na 3 nadzemnom podlaží

Získajte výhodné uvádzacie ceny !!!

Odoslaním formuláru súhlasíte s pravidlami GDPR.

Návrat hore
domino-park-bytovka-cam01-celkovy_000538-z

SPUSTENÝ PREDAJ a VÝSTAVBA

BYTOV a DOMOV

AKTUALITY

Získajte výhodné uvádzacie ceny !!!
Aktuálne pripravujeme do predaja bytový dom s 25 bytmi

Mám záujem

Zanechajte nám svoj odkaz, obratom sa Vám ozveme